| TYPOS - Brno | |||||||||||||||
|
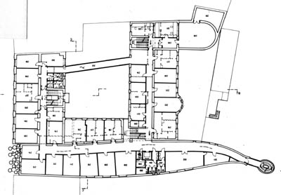
1989 - Studie rekonstrukce stávající budovy a dostavby proluky pro televizní studio v Brně. Celým objektem prochází pasáž, která byla kdysi propojena s navazující pasáží Typos II. ústící do ulice Běhounská. Také tento projekt naleznete v naší galerii. |
|||||||||||||||
|
|